「注文住宅の間取りはどのように決めるべき?」
「土地の広さに合わせた間取りの例を知りたい!」
このように、注文住宅の間取り決めに悩んでいる方は、多いのではないでしょうか。注文住宅の間取りは、デザイン性と機能性の両立をする必要があります。
しかし、なにも考えずにデザイン性だけに偏った間取りにすると、住んだ後に後悔する可能性が高いです。そこでこの記事では、坪数に合わせた間取りの例や間取りを決める際のポイントについて解説します。
注文住宅の間取り決めで後悔しないためにも、この記事をチェックしてみてください。
また、以下では前橋・高崎で信頼できるおすすめの注文住宅メーカーを紹介しているので、あわせてご覧ください。
30坪台で作る理想の間取り

ここでは、30坪台で作る理想の間取りである3つの例を紹介します。3つの例を参考にして、希望の間取りを実現しましょう。
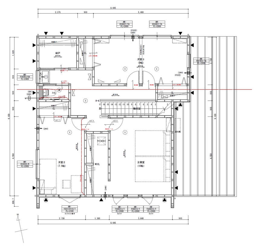
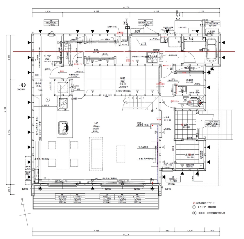
ナチュラルテイストなシンプルな間取り 3LDK
ナチュラルテイストなシンプルな3LDKの間取りは、機能性とデザイン性を兼ね備えた住空間として設計されています。キッチンからリビング全体が見渡せるため、家事をしながら家族の様子を確認できます。
個室は各部屋にしっかりとした収納を設け、生活感を抑えつつも快適に使える工夫がされているのもポイントです。水回りや玄関の配置にも無駄がなく、生活導線が整理された設計です。
プライバシーにも配慮した間取り 3LDK
3LDKの間取りでプライバシーへの配慮がなされた設計は、家族全員が快適に暮らすうえで重要な要素です。リビングやダイニングといった共用空間と、各個室との距離や配置に工夫があると、生活音や視線の干渉を防げます。
たとえば、リビングを中央に配置し、個室をそれぞれ分離することで、家族の気配を感じながらもプライベートな時間を確保できます。来客時にも個室が見えにくく、安心して応対が可能です。
また、主寝室を子ども部屋から適度に離すことで、生活リズムの違いによるストレスを軽減できます。水まわりへの動線にも無駄がなく、各部屋からのアクセス性も高められています。
土間や書斎、吹抜けを実現した間取り 4LDK
4LDKの間取りに、土間・書斎・吹抜けといった多様な要素を取り入れた住まいは、家族それぞれの暮らしやすさと開放感を両立させています。玄関に設けられた土間スペースは、趣味の道具の収納やベビーカーの一時置き場として機能的で、生活導線を快適に保ちます。
リビング上部には吹抜けがあり、自然光がたっぷりと差し込むことで、空間全体に明るさと奥行きが生まれるのがポイントです。空気の流れもよくなり、居心地の良い空間を実現しています。
加えて、在宅ワークや集中した作業に対応するために設けられた書斎は、プライベートな時間を確保する場所として効果的です。家族それぞれの生活スタイルに合わせた設計により、快適性と機能性を高いレベルで両立した住宅です。
40坪台で作る理想の間取り

ここでは、40坪台で作る理想の間取り3つの例について紹介します。例を参考にして、自分や家族に最適な間取りを実現してみてください。
吹抜けリビングがある間取り 3LDK
吹抜けリビングが魅力の3LDK間取りは、空間の開放感と明るさを重視する住宅設計の好例です。リビング上部に設けられた吹抜けにより、自然光がたっぷりと差し込み、室内全体が明るく保たれます。
家族が集まるリビングを中心に、個々の居室がバランスよく配置されています。1階にLDKや水回り、主寝室があり、生活動線が効率的です。
2階には子ども部屋や趣味の部屋として活用できる洋室が2部屋あることから、プライベート空間と共有空間がしっかり分けられています。また、吹抜けを通じて上下階のつながりが生まれるため、家族間のコミュニケーションが自然と促進されるのがポイントです。
通風・採光の面でも機能性が高く、快適な居住環境を実現しています。
趣味空間、暮らしやすさを叶えた間取り 3LDK
ガレージと住空間をつなぐ間取りは、趣味と日常の両立を意識した設計です。リビングの一角に設けたワイド窓からは愛車を眺めることができ、暮らしに特別感を与えてくれます。シャッターはリモコンで開閉でき、リビングからの操作も可能です。
2階には家族が集う多目的スペースを配置し、隣接する広いバルコニーではBBQなどアウトドアも楽しめます。光を多方向から取り込めるテラスや効率的に水回りをまとめた動線計画により、明るさと快適さを兼ね備えた住まいです。
ガレージを趣味空間にするだけでなく、家族の団らんや将来の暮らしにも柔軟に対応できる間取りとなっています。
中庭が付いた間取り 5K
中庭付きの5K間取りは、家族のプライバシーを確保しながら、自然との一体感を楽しめる構成が特徴です。中庭を中心に各部屋が配置されているため、室内にいながらも光や風を取り込みやすく、快適な住環境が実現します。
特に視線が外部に抜けにくいため、都市部においても安心して開放的な空間を確保できます。また、居室ごとに独立性があるため、家族それぞれの生活リズムにも柔軟に対応可能です。
キッチンやリビングから中庭へのアクセスも良好で、日常的に自然を感じられる動線が確保されています。子どもの遊び場や家庭菜園としても活用でき、生活の幅が広がります。
50坪台で作る理想の間取り

ここでは、50坪台で作る理想の間取り3つの例について紹介します。例を参考にして、自分や家族に最適な間取りを実現してみてください。
天井高3mの間取り 5K以上
天井高3mの間取りを採用した5K以上の住宅は、開放感と機能性を両立させた設計が特徴です。一般的な天井高よりも約60cm高く、圧迫感のない空間が日常の快適性を高めます。
リビングだけでなく、各部屋においても天井が高いことで、自然光の入り方や空気の流れが良くなり、居住性が向上します。また、高さを活かして収納やインテリアの自由度が高まる点も魅力です。
家族が多くてもプライバシーを確保しながら、それぞれの生活スタイルに合わせた使い方が可能です。部屋数が多く、在宅ワークや趣味のスペースとしても柔軟に活用できます。
高天井と間取りのバランスが取れており、デザイン性だけでなく実用性にも優れています。
スキップフロアがある間取り 5LDK
スキップフロアを採用した5LDKの間取りは、空間に立体感を持たせながら家族それぞれの居場所を確保できる設計です。上下階を緩やかにつなぐ構造により、視線の抜けや光の取り込みが良好で、開放感のある住空間が実現されています。
リビングとダイニングの間に段差を設けると、空間を緩やかに分けつつも一体感が保たれ、家族の気配を感じながら過ごすことが可能です。5LDKという部屋数の多さにより、プライベートな個室を確保しながらも、共用スペースでのコミュニケーションが取りやすい構成となっています。
また、収納や書斎など多用途に対応するスペースが設けられており、ライフスタイルの変化にも柔軟に対応できます。
本格茶室のある和風モダン住宅 4LDK+茶室
本格的な茶室を備えた和風モダン住宅「4LDK+茶室」は、日本の伝統美と現代の快適性を融合させた住まいです。外観や内装には木材や塗り壁など自然素材を多用し、落ち着いた雰囲気を演出しています。
茶室は四畳半の本格設計で、水屋やマットなど茶の湯の所作に対応した仕様となっており、日常の中で本格的な茶道を楽しむことが可能です。 LDKは約21帖の広さを確保しており、家族が集う場としてのゆとりがあります。
南側に大きな掃き出し窓を設け、自然光をふんだんに取り込むことで開放感を高めています。加えて、和室や寝室、水まわりも動線が工夫されており、生活のしやすさと美しさが両立されているのがポイントです。
注文住宅の間取りで失敗しないポイント

注文住宅の間取りで失敗しないポイントは以下の3つです。
それぞれのポイントを把握して、注文住宅の間取りで失敗しないようにしましょう。
動線を考慮した設計にする
注文住宅の間取り設計では、動線の計画が住みやすさに大きく影響します。動線とは、家の中で人が移動するルートのことです。家事や日常生活の効率性に直結します。
たとえば、キッチンから洗濯機、物干し場への距離が遠いと、家事に余計な時間と労力がかかります。逆に、家事動線を短くまとめることで、日々の作業がスムーズにできるのがポイントです。
また、玄関からリビングや洗面所への動線も重要です。家族が自然な流れで行動できるように設計することで、ストレスの少ない生活が実現できます。
来客用と家族用の動線を分けることで、プライバシーを確保しながら来客対応がしやすいのもポイントです。動線を意識した設計は、見た目以上に住み心地を左右します。
間取りを考える際には、日常の動きを具体的にイメージしながら計画を立てましょう。
収納を広めに取る
注文住宅の間取りを検討する際、収納スペースは広めに確保することが失敗を防ぐ重要なポイントです。収納が不足すると、生活空間に物があふれやすくなり、居住性や快適性が損なわれます。
特に家族が増えると、衣類や日用品、季節ごとの道具など持ち物も自然と増えるでしょう。将来の変化も見越して収納量を確保しておくことで、長く快適に暮らせる住まいを実現できます。
収納は単に数を増やすのではなく、配置や使い勝手も重要です。各部屋に適切な場所へ収納を設けることで、動線を邪魔せず、日常生活の効率がよくなります。
また、ウォークインクローゼットやパントリーのように、用途に応じた大型収納を設けることで、収納力と利便性のバランスが取れます。間取りを決める段階で、収納に十分なスペースを取ることは、暮らしやすさを大きく左右する要素のため慎重に決めましょう。
建築士の意見を取り入れる
注文住宅の間取りで失敗を防ぐためには、建築士の意見を取り入れることが重要です。専門知識を持つ建築士は、構造や採光、動線といった視点から実用性の高い提案をしてくれます。
施主の希望だけで間取りを決めると、将来的に使いづらさや不便さを感じるケースがあります。たとえば、収納が足りなかったり、生活動線が非効率だったりなどです。
建築士は家族構成やライフスタイルを踏まえた上で、長期的に快適な住空間を設計するため、独自のアイデアや視点を提供してくれます。また、法的な制約や構造上の制限も考慮する必要があるため、素人では判断しきれない要素もアドバイスをしてくれるのがポイントです。
満足度の高い住まいを実現するためには、建築士と密にコミュニケーションを取り、専門的な意見を積極的に反映させることが不可欠です。
群馬でおすすめの住宅メーカー3選

群馬の住宅メーカーでおすすめなのは以下の3社です。
それぞれの特徴を把握して、自分や家族の理想の注文住宅を実現できるメーカー選びに役立ててみてください。
インカラーアーキテクツ株式会社
インカラーアーキテクツ株式会社は、群馬県を拠点に展開する住宅メーカーで、高いデザイン性と機能性を兼ね備えた注文住宅を提供しています。建築士が直接施主と対話し、要望に沿ったプランニングをしてくれるのが特徴です。
| 項目 | 詳細 |
|---|---|
| 会社名 | インカラーアーキテクツ株式会社 |
| 所在地 | 〒370-0852 群馬県高崎市中居町1-9-20 |
| 電話番号 | 027-384-3601 |
| 公式HP | https://incolore-arc.jp/ |
一般的な規格住宅とは異なり、ライフスタイルや敷地条件に応じた自由度の高い設計が可能で、細部にまでこだわった住まいづくりが実現できます。また、断熱性や耐震性といった住宅性能にも配慮しており、長期的に快適で安全な住環境を提供しているのがポイントです。
群馬県内で自分らしい住まいを求める層にとって、インカラーアーキテクツ株式会社は有力な選択肢のひとつです。
インカラーアーキテクツ株式会社について詳しく知りたい方は、次の記事もあわせてご覧ください。
インカラーアーキテクツ株式会社の会社情報を知りたい方は、公式サイトを御覧ください。
Bino前橋(立見建設株式会社)

Bino前橋(立見建設株式会社)は地域密着型の企業であり、長年にわたり地元に根ざした家づくりをしてきた実績があります。Binoブランドでは、自然素材やライフスタイルにこだわったデザイン性の高い住宅を提供しています。
| 項目 | 詳細 |
|---|---|
| 会社名 | 立見建設株式会社 |
| 屋号 | Bino前橋 |
| 所在地 | 〒371-0851 群馬県前橋市総社町植野841 |
| 電話番号 | 027-255-6688 |
| 公式HP | https://ts-casa.jp/ |
特に平屋やスキップフロアといった個性的な間取りに対応しており、住まいに独自性を求める層から高い評価を受けているのがポイントです。立見建設株式会社は設計から施工まで一貫して対応しており、細かな要望にも柔軟に応じられる体制が整っています。
また、耐震性や断熱性といった住宅性能にも注力しており、長く安心して暮らせる住まいを提供しています。Bino前橋はデザイン性と機能性のバランスに優れた住宅を希望する人にとって、非常に適した住宅メーカーです。
Bino前橋(立見建設)について詳しく知りたい方は、次の記事もあわせてご覧ください。
住友林業

住友林業は木造住宅に強みを持ち、設計の自由度が高く、施主のライフスタイルに合わせた住まいを提供しています。特に、自社で取り扱う木材の品質管理が徹底されており、耐震性や断熱性にも優れた住宅を実現できます。
| 項目 | 詳細 |
|---|---|
| 会社名 | 住友林業株式会社 |
| 所在地 | 〒370-0802 群馬県高崎市並榎町41-1 上毛新聞マイホームプラザ高崎会場内 |
| 電話番号 | 027-364-1711 |
| 公式HP | https://sfc.jp/ie/ |
自然素材を活かしたデザイン性の高さも特長です。また、営業・設計・施工・アフターサービスまで一貫して対応しているため、住まいづくりにおいて安心感があります。
地域に根ざした支店も構えており、群馬県内での施工実績も豊富です。長期的なメンテナンス体制も整っており、住み始めた後のサポートにも力を入れています。
住友林業株式会社について詳しく知りたい方は、次の記事もあわせてご覧ください。
まとめ
注文住宅の間取りは土地の広さに合わせて、決める必要があります。また、デザイン性だけでなく機能性も重視することが大切です。
特に動線や収納を考慮した間取りにすると、住んだ後も後悔せずに済むでしょう。注文住宅の間取りを決める際は、住宅メーカーの担当者にアドバイスをもらいながら、理想の間取りを実現してみてください。






















